物件ID:167861
情報公開日:2025年07月28日
情報更新日:2025年10月21日
立地
-
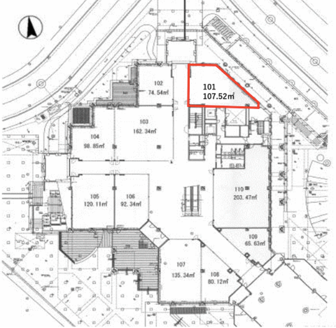
住所 東京都千代田区飯田橋三丁目10-9 建物名/所在階 飯田橋アイガーデンテラス/1階 最寄駅 JR中央・総武線水道橋駅
徒歩4分近隣駅1 ー 近隣駅2 ー
費用/契約
-
造作価格 ー 賃料(坪単価) 786,632円(24,185円) 管理費/共益費(坪単価) ー(ー) 保証金/敷金 ー / 8ヶ月 償却 ご相談 礼金 1ヶ月 更新料/再契約料 ー その他費用 賃貸保証加入要 仲介手数料 1ヶ月 その他手数料 ー 契約期間 5年 契約種別 普通賃貸借
用途
-
物件の現況 ー 可能用途 指定あり 坪数 32.52坪
- 備考
- 年次法廷点検と各種清掃作業有:別途費用 中途解約金設定有
販売促進費:50,886円 テナント会費:11,000円
内装工事には内装監理が入ります:別途費用



























