物件ID:166553
情報公開日:2025年07月15日
情報更新日:2025年10月08日
立地
-
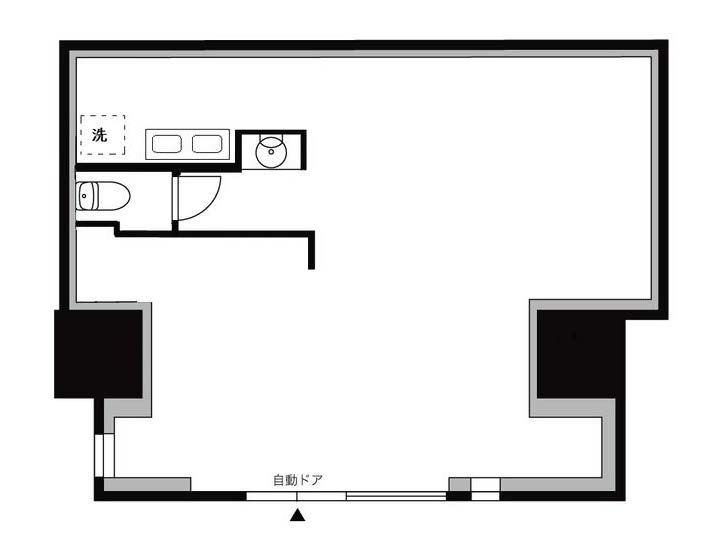
住所 東京都台東区東上野五丁目6-1 建物名/所在階 Brillia上野Garden/1階 最寄駅 JR山手線上野駅
徒歩5分近隣駅1 JR京浜東北線上野駅
徒歩5分近隣駅2 東京メトロ銀座線上野駅
徒歩5分
費用/契約
-
造作価格 ー 賃料(坪単価) 388,300円(27,236円) 管理費/共益費(坪単価) 22,000円(1,543円) 保証金/敷金 0ヶ月 / 6ヶ月 償却 0% 礼金 1ヶ月 更新料/再契約料 1ヶ月 その他費用 ー 仲介手数料 1ヶ月 その他手数料 ー 契約期間 3年 契約種別
用途
-
物件の現況 ー 可能用途 指定あり 坪数 14.26坪
- 備考



















