物件ID:166054
情報公開日:2026年03月10日
情報更新日:2026年03月10日
立地
-
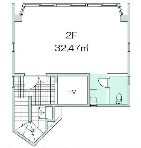
住所 東京都立川市柴崎町三丁目3-3 建物名/所在階 櫻岡ビル 2F/2階 最寄駅 JR中央線(快速)立川駅
徒歩1分近隣駅1 ー 近隣駅2 ー
費用/契約
-
造作価格 ー 賃料(坪単価) 308,000円(31,357円) 管理費/共益費(坪単価) 38,500円(3,919円) 保証金/敷金 10ヶ月 / ー 償却 20% 礼金 1ヶ月 更新料/再契約料 ー その他費用 看板料11000円税込 仲介手数料 1ヶ月 その他手数料 ー 契約期間 3年 契約種別
用途
-
物件の現況 サービス(その他) 可能用途 指定あり 坪数 9.82坪
- 備考




















