物件ID:165432
情報公開日:2025年07月07日
情報更新日:2025年10月02日
立地
-
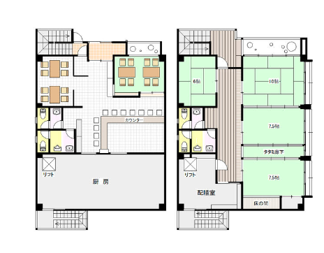
住所 東京都日野市南平八丁目14-18 建物名/所在階 折笠ビル 1-2F /1~2階 最寄駅 京王線南平駅
徒歩5分近隣駅1 ー 近隣駅2 ー
費用/契約
-
造作価格 ー 賃料(坪単価) 495,000円(7,292円) 管理費/共益費(坪単価) ー(ー) 保証金/敷金 6ヶ月 / ー 償却 30% 礼金 1ヶ月 更新料/再契約料 ー その他費用 ー 仲介手数料 1ヶ月 その他手数料 ー 契約期間 3年 契約種別 普通賃貸借
用途
-
物件の現況 寿司・和食 可能用途 指定あり 坪数 67.88坪
- 備考



















