物件ID:162799
情報公開日:2025年06月14日
情報更新日:2025年09月12日
立地
-
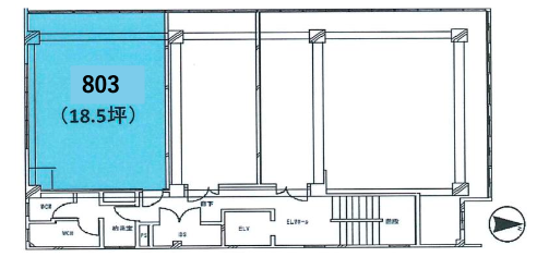
住所 東京都千代田区岩本町三丁目4-5 建物名/所在階 第1東ビル 803/8階 最寄駅 都営新宿線岩本町駅
徒歩1分近隣駅1 ー 近隣駅2 ー
費用/契約
-
造作価格 ー 賃料(坪単価) 244,200円(13,200円) 管理費/共益費(坪単価) 55,500円(3,300円) 保証金/敷金 8ヶ月 / ー 償却 0% 礼金 0ヶ月 更新料/再契約料 ー その他費用 ー 仲介手数料 1ヶ月 その他手数料 ー 契約期間 3年 契約種別 普通賃貸借
用途
-
物件の現況 サービス(その他) 可能用途 指定あり 坪数 18.50坪
- 備考





















