物件ID:162340
情報公開日:2025年06月11日
情報更新日:2026年03月01日
立地
-
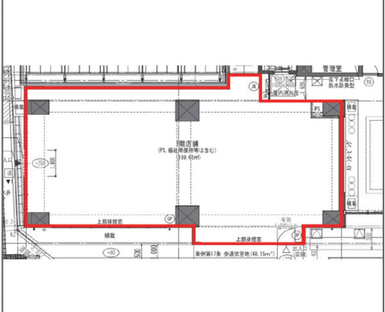
住所 東京都足立区西新井七丁目21-5 建物名/所在階 プレジオ西新井/1階 最寄駅 日暮里・舎人ライナー西新井大師西駅
徒歩1分近隣駅1 ー 近隣駅2 ー
費用/契約
-
造作価格 ー 賃料(坪単価) 1,578,500円(26,754円) 管理費/共益費(坪単価) ー(ー) 保証金/敷金 0ヶ月 / 6ヶ月 償却 0% 礼金 1ヶ月 更新料/再契約料 ー その他費用 ー 仲介手数料 1ヶ月 その他手数料 ー 契約期間 5年 契約種別
用途
-
物件の現況 ー 可能用途 指定あり 坪数 59.00坪
- 備考
- 敷地内駐車場あり、駐輪場あり
・天井高:2,625mm〜2,700mm(床から天井迄)
・店舗用駐輪場有り 550円(税込)/1台あたり





















