物件ID:152425
情報公開日:2025年03月18日
情報更新日:2025年12月08日
立地
-
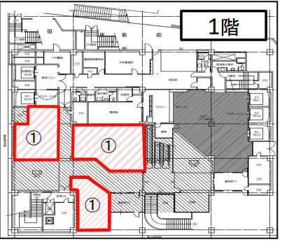
住所 神奈川県川崎市川崎区日進町1-15 建物名/所在階 川崎日航ホテル/1階 最寄駅 JR東海道本線(東京~熱海)川崎駅
徒歩1分近隣駅1 ー 近隣駅2 ー
費用/契約
-
造作価格 ー 賃料(坪単価) 1,946,560円(44,002円) 管理費/共益費(坪単価) ー(ー) 保証金/敷金 ー / 12ヶ月 償却 ご相談 礼金 ご相談 更新料/再契約料 ー その他費用 保証会社・火災保険加入要 仲介手数料 1ヶ月 その他手数料 ー 契約期間 ー 契約種別 普通賃貸借
用途
-
物件の現況 ー 可能用途 指定あり 坪数 44.24坪
- 備考
- 契約形態:定借2~4年
敷金:賃料12ヶ月分程度
引渡:スケルトン又は居抜き(元コンビニ)



















