物件ID:145427
情報公開日:2026年02月27日
情報更新日:2026年02月27日
立地
-
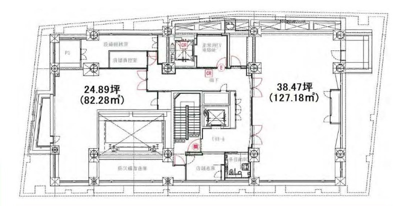
住所 東京都新宿区新宿五丁目17-11 建物名/所在階 第1白鳳ビルディング B1階/地下1階 最寄駅 東京メトロ丸ノ内線新宿三丁目駅
徒歩3分近隣駅1 ー 近隣駅2 ー
費用/契約
-
造作価格 ー 賃料(坪単価) 1,269,510円(33,000円) 管理費/共益費(坪単価) ー(ー) 保証金/敷金 12ヶ月 / ー 償却 ご相談 礼金 0ヶ月 更新料/再契約料 ー その他費用 ー 仲介手数料 1ヶ月 その他手数料 ー 契約期間 2年 契約種別
用途
-
物件の現況 サービス(その他) 可能用途 指定あり 坪数 38.47坪
- 備考



















