物件ID:132963
情報公開日:2025年12月16日
情報更新日:2025年12月16日
立地
-
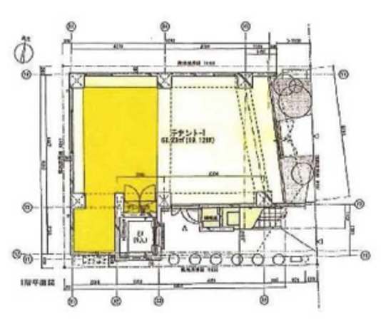
住所 埼玉県さいたま市浦和区仲町一丁目10-21 建物名/所在階 テイスティビル/1階 最寄駅 JR京浜東北線浦和駅
徒歩3分近隣駅1 ー 近隣駅2 ー
費用/契約
-
造作価格 ー 賃料(坪単価) 656,198円(34,307円) 管理費/共益費(坪単価) ー(ー) 保証金/敷金 6ヶ月 / ー 償却 10% 礼金 2ヶ月 更新料/再契約料 1ヶ月 その他費用 雑費(看板代3か所):33,000円/月 仲介手数料 1ヶ月 その他手数料 ー 契約期間 5年 契約種別 普通賃貸借
用途
-
物件の現況 ー 可能用途 ご相談 坪数 19.13坪
- 備考
- 解約予告6か月前
土日・祝日利用可
築後未入居



















