物件ID:117015
情報公開日:2026年01月27日
情報更新日:2026年02月25日
立地
-
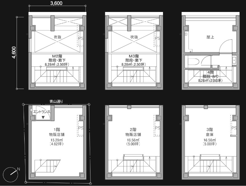
住所 東京都港区南青山三丁目12-11 建物名/所在階 ARA南青山プレイス/1~4階 最寄駅 東京メトロ銀座線表参道駅
徒歩1分近隣駅1 東京メトロ千代田線表参道駅
徒歩1分近隣駅2 東京メトロ半蔵門線表参道駅
徒歩1分
費用/契約
-
造作価格 ー 賃料(坪単価) 1,650,000円(74,492円) 管理費/共益費(坪単価) ー(ー) 保証金/敷金 8ヶ月 / 0ヶ月 償却 0ヶ月 礼金 1ヶ月 更新料/再契約料 ー その他費用 ー 仲介手数料 1ヶ月 その他手数料 ー 契約期間 5年 契約種別 普通賃貸借
用途
-
物件の現況 サービス(その他) 可能用途 指定あり 坪数 22.15坪
- 備考
- 飲食店不可
























