物件ID:197590
情報公開日:2026年04月02日
情報更新日:2026年04月02日
立地
-
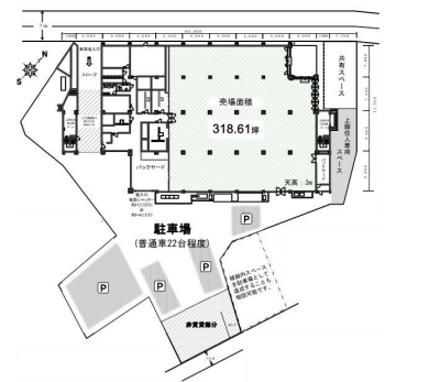
住所 神奈川県綾瀬市寺尾北一丁目10-18 建物名/所在階 1階 最寄駅 相鉄本線かしわ台駅
徒歩5分近隣駅1 ー 近隣駅2 ー
費用/契約
-
造作価格 ー 賃料(坪単価) 1,735,235円(3,847円) 管理費/共益費(坪単価) ー(ー) 保証金/敷金 ー / 3ヶ月 償却 ご相談 礼金 1ヶ月 更新料/再契約料 1ヶ月 その他費用 保証会社・火災保険加入要 仲介手数料 1ヶ月 その他手数料 ー 契約期間 3年 契約種別
用途
-
物件の現況 サービス(その他) 可能用途 指定あり 坪数 451.03坪
- 備考
- 物販・各種店舗・福祉関連可 トイレあり
駐車場:11,000円/⽉




















