物件ID:197388
情報公開日:2026年04月01日
情報更新日:2026年04月01日
立地
-
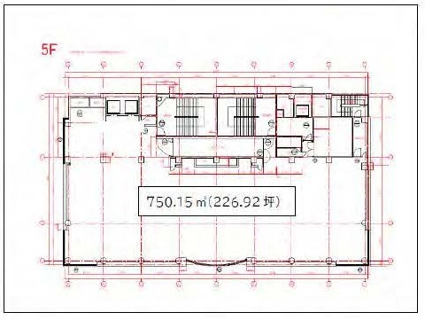
住所 神奈川県横浜市中区山下町36-1 建物名/所在階 横浜山下町ビル_5階/5階 最寄駅 みなとみらい線元町・中華街駅
徒歩1分近隣駅1 ー 近隣駅2 ー
費用/契約
-
造作価格 ー 賃料(坪単価) 2,745,000円(12,096円) 管理費/共益費(坪単価) ー(ー) 保証金/敷金 ー / 12ヶ月 償却 0% 礼金 0ヶ月 更新料/再契約料 1ヶ月 その他費用 ー 仲介手数料 1ヶ月 その他手数料 ー 契約期間 5年 契約種別 普通賃貸借
用途
-
物件の現況 サービス(その他) 可能用途 指定あり 坪数 226.92坪
- 備考



















