物件ID:196538
情報公開日:2026年03月25日
情報更新日:2026年03月25日
立地
-
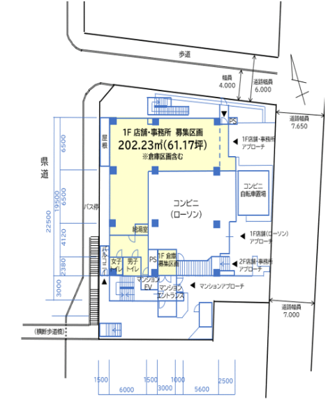
住所 千葉県市川市市川三丁目26-13 建物名/所在階 1階 最寄駅 京成本線国府台駅
徒歩1分近隣駅1 ー 近隣駅2 ー
費用/契約
-
造作価格 ー 賃料(坪単価) 631,400円(10,321円) 管理費/共益費(坪単価) ー(ー) 保証金/敷金 ー / 6ヶ月 償却 2ヶ月 礼金 1ヶ月 更新料/再契約料 ー その他費用 ー 仲介手数料 1ヶ月 その他手数料 ー 契約期間 5年 契約種別
用途
-
物件の現況 サービス(その他) 可能用途 ご相談 坪数 61.17坪
- 備考




















