物件ID:196315
情報公開日:2026年03月24日
情報更新日:2026年03月24日
立地
-
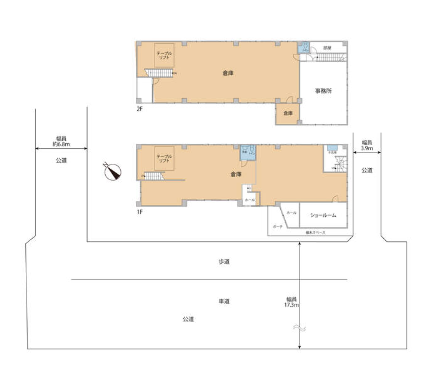
住所 神奈川県平塚市中里49-13 建物名/所在階 中里テナント 1F.2F/1~2階 最寄駅 JR東海道本線(東京~熱海)平塚駅
徒歩1分近隣駅1 ー 近隣駅2 ー
費用/契約
-
造作価格 ー 賃料(坪単価) 880,000円(6,069円) 管理費/共益費(坪単価) ー(ー) 保証金/敷金 6ヶ月 / ー 償却 1ヶ月 礼金 0ヶ月 更新料/再契約料 ー その他費用 駐車場6台空きあり無料 仲介手数料 1ヶ月 その他手数料 ー 契約期間 3年 契約種別
用途
-
物件の現況 サービス(その他) 可能用途 指定あり 坪数 144.99坪
- 備考



















