物件ID:192259
情報公開日:2026年02月19日
情報更新日:2026年02月19日
立地
-
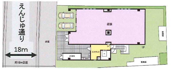
住所 千葉県松戸市常盤平五丁目16-14 建物名/所在階 YASUIビル第14 1F /1階 最寄駅 新京成線五香駅
徒歩5分近隣駅1 ー 近隣駅2 ー
費用/契約
-
造作価格 ー 賃料(坪単価) 715,000円(14,044円) 管理費/共益費(坪単価) ー(ー) 保証金/敷金 ー / 500,000 償却 ご相談 礼金 2ヶ月 更新料/再契約料 ー その他費用 家財保険 33,000円 保証会社要加入 仲介手数料 1ヶ月 その他手数料 ー 契約期間 2年 契約種別
用途
-
物件の現況 サービス(その他) 可能用途 指定あり 坪数 50.91坪
- 備考
- 駐車場2台無料






















