物件ID:189424
情報公開日:2026年01月29日
情報更新日:2026年01月29日
立地
-
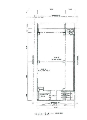
住所 神奈川県横浜市中区福富町東通1-1 建物名/所在階 カトレヤプラザメディカルセンター 2F/2階 最寄駅 JR根岸線関内駅
徒歩3分近隣駅1 ブルーライン関内駅
徒歩3分近隣駅2 ー
費用/契約
-
造作価格 ー 賃料(坪単価) 402,600円(12,987円) 管理費/共益費(坪単価) 88,000円(2,838円) 保証金/敷金 ー / 12ヶ月 償却 ご相談 礼金 0ヶ月 更新料/再契約料 ー その他費用 ー 仲介手数料 1ヶ月 その他手数料 ー 契約期間 15年 契約種別
用途
-
物件の現況 サービス(その他) 可能用途 指定あり 坪数 31.00坪
- 備考



















