物件ID:189337
情報公開日:2026年01月28日
情報更新日:2026年01月28日
立地
-
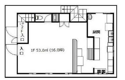
住所 神奈川県横浜市港南区上大岡東二丁目2-1 建物名/所在階 上大岡テナントオフィス/1階 最寄駅 京急本線上大岡駅
徒歩4分近隣駅1 ー 近隣駅2 ー
費用/契約
-
造作価格 ー 賃料(坪単価) ご相談(0円) 管理費/共益費(坪単価) ー(ー) 保証金/敷金 8ヶ月 / ー 償却 ご相談 礼金 2ヶ月 更新料/再契約料 ー その他費用 ー 仲介手数料 1ヶ月 その他手数料 ー 契約期間 3年 契約種別
用途
-
物件の現況 ラーメン 可能用途 ご相談 坪数 16.00坪
- 備考

























