物件ID:189162
情報公開日:2026年02月28日
情報更新日:2026年02月28日
立地
-
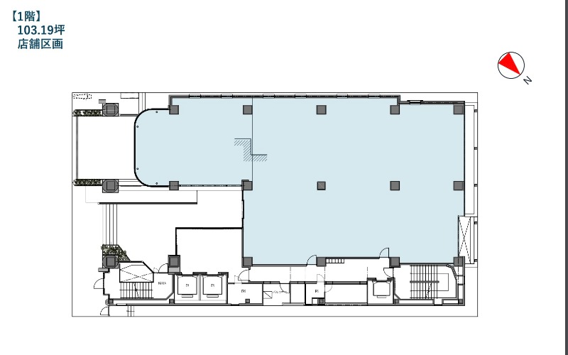
住所 神奈川県横浜市港北区新横浜二丁目5-16 建物名/所在階 tanosio shin-yokohama/1階 最寄駅 JR横浜線新横浜駅
徒歩2分近隣駅1 ー 近隣駅2 ー
費用/契約
-
造作価格 ー 賃料(坪単価) 2,837,725円(27,500円) 管理費/共益費(坪単価) ー(ー) 保証金/敷金 10ヶ月 / 0ヶ月 償却 0% 礼金 0ヶ月 更新料/再契約料 ー その他費用 ー 仲介手数料 1ヶ月 その他手数料 ー 契約期間 5年 契約種別 普通賃貸借
用途
-
物件の現況 ー 可能用途 指定あり 坪数 103.19坪
- 備考





















