物件ID:189091
情報公開日:2026年01月27日
情報更新日:2026年01月27日
立地
-
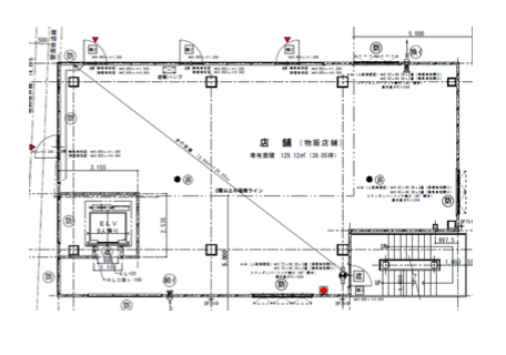
住所 神奈川県藤沢市湘南台二丁目6-1 建物名/所在階 フィル・パーク湘南台Ⅲ3階/3階 最寄駅 小田急江ノ島線湘南台駅
徒歩4分近隣駅1 相鉄いずみ野線湘南台駅
徒歩5分近隣駅2 ブルーライン湘南台駅
徒歩7分
費用/契約
-
造作価格 ー 賃料(坪単価) 493,982円(12,647円) 管理費/共益費(坪単価) ー(ー) 保証金/敷金 6ヶ月 / ー 償却 ご相談 礼金 1ヶ月 更新料/再契約料 ー その他費用 ー 仲介手数料 1ヶ月 その他手数料 ー 契約期間 5年 契約種別 普通賃貸借
用途
-
物件の現況 サービス(その他) 可能用途 指定あり 坪数 39.06坪
- 備考



















