物件ID:187571
情報公開日:2026年01月15日
情報更新日:2026年01月15日
立地
-
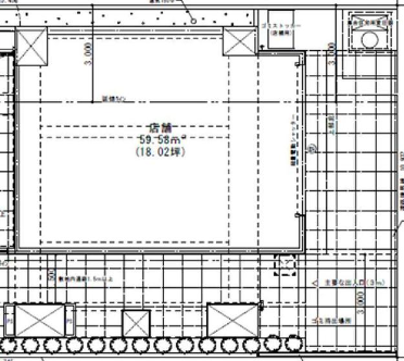
住所 埼玉県さいたま市中央区大字下落合1024-1 建物名/所在階 THE PALMS 与野 1F/1階 最寄駅 JR京浜東北線与野駅
徒歩4分近隣駅1 ー 近隣駅2 ー
費用/契約
-
造作価格 ー 賃料(坪単価) 385,000円(21,365円) 管理費/共益費(坪単価) ー(ー) 保証金/敷金 ー / 10ヶ月 償却 0% 礼金 0ヶ月 更新料/再契約料 ー その他費用 店舗看板有り 仲介手数料 1ヶ月 その他手数料 ー 契約期間 2年 契約種別
用途
-
物件の現況 ー 可能用途 指定あり 坪数 18.02坪
- 備考




















