物件ID:187384
情報公開日:2026年01月14日
情報更新日:2026年01月14日
立地
-
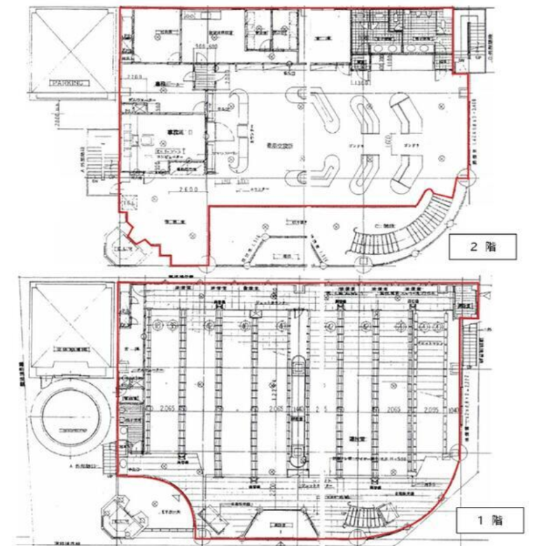
住所 神奈川県横浜市磯子区西町12-18 建物名/所在階 エイセキビル/1~2階 最寄駅 JR根岸線根岸駅
徒歩1分近隣駅1 ー 近隣駅2 ー
費用/契約
-
造作価格 ー 賃料(坪単価) 5,060,000円(21,434円) 管理費/共益費(坪単価) ー(ー) 保証金/敷金 10ヶ月 / ー 償却 ご相談 礼金 1ヶ月 更新料/再契約料 ー その他費用 ー 仲介手数料 1ヶ月 その他手数料 ー 契約期間 10年 契約種別 普通賃貸借
用途
-
物件の現況 ー 可能用途 何業も可 坪数 236.07坪
- 備考




















