物件ID:187169
情報公開日:2026年01月12日
情報更新日:2026年01月12日
立地
-
住所 神奈川県厚木市中町二丁目1-15 建物名/所在階 米新ビル/7階 最寄駅 小田急線本厚木駅
徒歩1分近隣駅1 ー 近隣駅2 ー
費用/契約
-
造作価格 ご相談 賃料(坪単価) 1,014,915円(16,500円) 管理費/共益費(坪単価) ー(ー) 保証金/敷金 0ヶ月 / 12ヶ月 償却 ご相談 礼金 1ヶ月 更新料/再契約料 1ヶ月 その他費用 初回保証料:月額総賃料の100% 仲介手数料 1ヶ月 その他手数料 ー 契約期間 2年 契約種別
用途
-
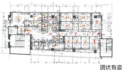
物件の現況 エステ・マッサージ・サロン 可能用途 ご相談 坪数 61.51坪
- 備考























