物件ID:186004
情報公開日:2025年12月26日
情報更新日:2025年12月26日
立地
-
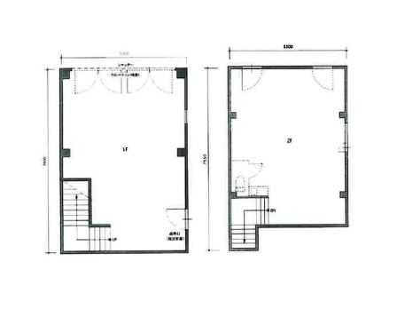
住所 神奈川県横浜市中区元町五丁目206 建物名/所在階 葭谷ビル 1F.2F/1~2階 最寄駅 JR根岸線石川町駅
徒歩6分近隣駅1 ー 近隣駅2 ー
費用/契約
-
造作価格 ー 賃料(坪単価) 715,000円(31,735円) 管理費/共益費(坪単価) ー(ー) 保証金/敷金 6ヶ月 / ー 償却 10% 礼金 1ヶ月 更新料/再契約料 ー その他費用 ー 仲介手数料 1ヶ月 その他手数料 ー 契約期間 8年 契約種別 普通賃貸借
用途
-
物件の現況 サービス(その他) 可能用途 指定あり 坪数 22.53坪
- 備考



















