物件ID:185920
情報公開日:2025年12月25日
情報更新日:2025年12月25日
立地
-
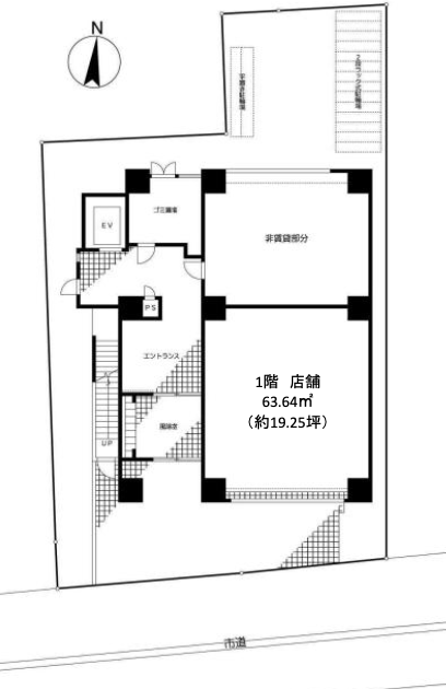
住所 神奈川県平塚市明石町24 建物名/所在階 (仮称)平塚市明石町テナント 1F/1階 最寄駅 JR東海道本線(東京~熱海)平塚駅
徒歩5分近隣駅1 ー 近隣駅2 ー
費用/契約
-
造作価格 ー 賃料(坪単価) 330,000円(17,141円) 管理費/共益費(坪単価) ー(ー) 保証金/敷金 6ヶ月 / ー 償却 2ヶ月 礼金 1ヶ月 更新料/再契約料 ー その他費用 ー 仲介手数料 1ヶ月 その他手数料 ー 契約期間 3年 契約種別
用途
-
物件の現況 サービス(その他) 可能用途 指定あり 坪数 19.25坪
- 備考




















