物件ID:184518
情報公開日:2025年12月12日
情報更新日:2026年03月12日
立地
-
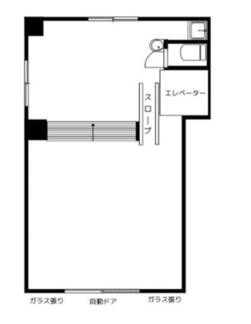
住所 神奈川県横浜市神奈川区松本町六丁目41 建物名/所在階 てぃだ横浜/1階 最寄駅 ブルーライン三ツ沢下町駅
徒歩2分近隣駅1 東急東横線反町駅
徒歩9分近隣駅2 ブルーライン三ツ沢上町駅
徒歩14分
費用/契約
-
造作価格 ー 賃料(坪単価) 230,000円(19,008円) 管理費/共益費(坪単価) ー(ー) 保証金/敷金 3ヶ月 / ー 償却 1ヶ月 礼金 1ヶ月 更新料/再契約料 ー その他費用 ー 仲介手数料 1ヶ月 その他手数料 ー 契約期間 2年 契約種別
用途
-
物件の現況 サービス(その他) 可能用途 指定あり 坪数 12.10坪
- 備考



















