物件ID:183600
情報公開日:2025年12月05日
情報更新日:2025年12月05日
立地
-
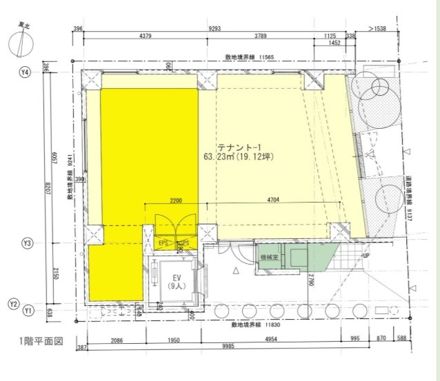
住所 埼玉県さいたま市浦和区仲町一丁目10-21 建物名/所在階 テイスティビル 1階/1階 最寄駅 JR京浜東北線浦和駅
徒歩5分近隣駅1 ー 近隣駅2 ー
費用/契約
-
造作価格 ー 賃料(坪単価) 654,500円(34,218円) 管理費/共益費(坪単価) 22,000円(1,265円) 保証金/敷金 6ヶ月 / ー 償却 10% 礼金 2ヶ月 更新料/再契約料 ー その他費用 ー 仲介手数料 1ヶ月 その他手数料 ー 契約期間 ー 契約種別 普通賃貸借
用途
-
物件の現況 ー 可能用途 指定あり 坪数 19.13坪
- 備考



















