物件ID:182262
情報公開日:2025年11月26日
情報更新日:2025年11月26日
立地
-
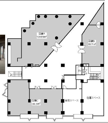
住所 埼玉県川口市南鳩ヶ谷五丁目33-18 建物名/所在階 アーバンヒルズ2階店舗 C/2階 最寄駅 埼玉高速鉄道線南鳩ヶ谷駅
徒歩6分近隣駅1 ー 近隣駅2 ー
費用/契約
-
造作価格 ー 賃料(坪単価) 340,802円(7,698円) 管理費/共益費(坪単価) 10,000円(225円) 保証金/敷金 ー / 3ヶ月 償却 ご相談 礼金 1ヶ月 更新料/再契約料 ー その他費用 ー 仲介手数料 1ヶ月 その他手数料 ー 契約期間 3年 契約種別
用途
-
物件の現況 ー 可能用途 指定あり 坪数 44.27坪
- 備考




















