物件ID:179730
情報公開日:2025年12月03日
情報更新日:2025年12月03日
立地
-
住所 埼玉県加須市花崎北一丁目18-2 建物名/所在階 ブルーベイhanasaki1/1階 最寄駅 東武伊勢崎線花崎駅
徒歩1分近隣駅1 ー 近隣駅2 ー
費用/契約
-
造作価格 ー 賃料(坪単価) 998,000円(5,933円) 管理費/共益費(坪単価) 55,000円(327円) 保証金/敷金 6ヶ月 / ー 償却 1ヶ月 礼金 1ヶ月 更新料/再契約料 1ヶ月 その他費用 ①賃貸借物件において使用する電気、ガス、上水道使用料②塵芥処 仲介手数料 1ヶ月 その他手数料 ー 契約期間 ー 契約種別 普通賃貸借
用途
-
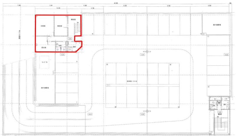
物件の現況 サービス(その他) 可能用途 何業も可 坪数 168.19坪
- 備考
- 現状はデイサービスの居抜きです。詳細は図面や現地をご確認ください。
最初の3年は中途解約不可 以降は6ヶ月前予告にて可
共用駐車場36台分 台数固定利用の場合月額3.300円/台


























