物件ID:178950
情報公開日:2025年10月31日
情報更新日:2026年03月02日
立地
-
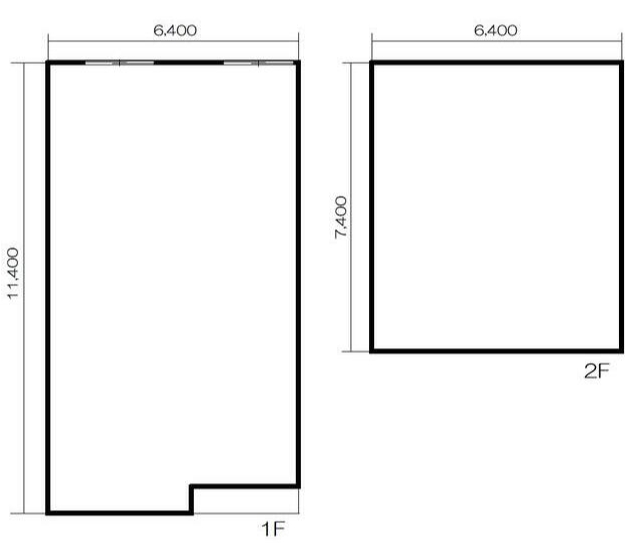
住所 神奈川県川崎市中原区上丸子八幡町813 建物名/所在階 1~2階 最寄駅 東急東横線新丸子駅
徒歩5分近隣駅1 ー 近隣駅2 ー
費用/契約
-
造作価格 ー 賃料(坪単価) 440,000円(12,253円) 管理費/共益費(坪単価) ー(ー) 保証金/敷金 10ヶ月 / ー 償却 20% 礼金 2ヶ月 更新料/再契約料 ー その他費用 保証会社・火災保険加入要 仲介手数料 1ヶ月 その他手数料 ー 契約期間 5年 契約種別 普通賃貸借
用途
-
物件の現況 飲食(その他) 可能用途 指定あり 坪数 35.91坪
- 備考
- 現状有姿 築年数不詳(昭和63年以前)

























