物件ID:178857
情報公開日:2025年10月30日
情報更新日:2026年04月23日
立地
-
住所 千葉県茂原市高師499-1 建物名/所在階 ⾼師マンション店舗 A区画/1階 最寄駅 JR外房線茂原駅
徒歩12分近隣駅1 JR外房線新茂原駅
徒歩30分近隣駅2 ー
費用/契約
-
造作価格 ー 賃料(坪単価) 165,000円(6,809円) 管理費/共益費(坪単価) 3,300円(136円) 保証金/敷金 ー / 2ヶ月 償却 ご相談 礼金 1ヶ月 更新料/再契約料 1ヶ月 その他費用 保険加入要 仲介手数料 1ヶ月 その他手数料 ー 契約期間 3年 契約種別
用途
-
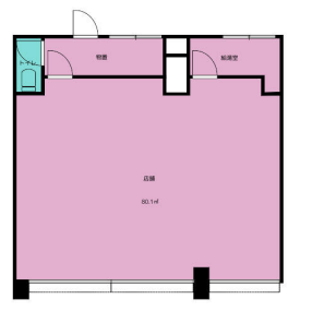
物件の現況 サービス(その他) 可能用途 指定あり 坪数 24.23坪
- 備考
- シャッター付き
駐車場有:5,500円/月(最大6台/一部縦列あり)



















