物件ID:178498
情報公開日:2025年10月28日
情報更新日:2025年10月28日
立地
-
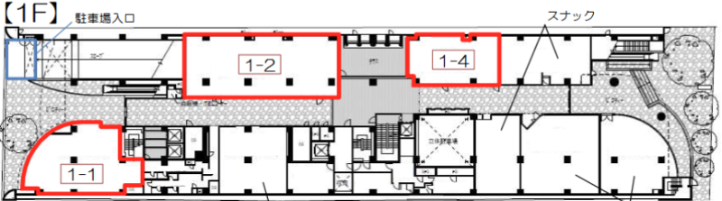
住所 埼玉県さいたま市浦和区高砂二丁目1-19 建物名/所在階 ホテルグローバルビュー浦和(1-1)/1階 最寄駅 JR京浜東北線浦和駅
徒歩5分近隣駅1 ー 近隣駅2 ー
費用/契約
-
造作価格 ー 賃料(坪単価) 1,159,125円(27,497円) 管理費/共益費(坪単価) ー(ー) 保証金/敷金 0ヶ月 / 6ヶ月 償却 0% 礼金 1ヶ月 更新料/再契約料 1ヶ月 その他費用 ー 仲介手数料 1ヶ月 その他手数料 ー 契約期間 3年 契約種別 普通賃貸借
用途
-
物件の現況 バー 可能用途 指定あり 坪数 42.15坪
- 備考
- 業種相談可
飲食店(バー)居抜き
フリーレント相談可




















