物件ID:176424
情報公開日:2025年10月08日
情報更新日:2025年10月08日
立地
-
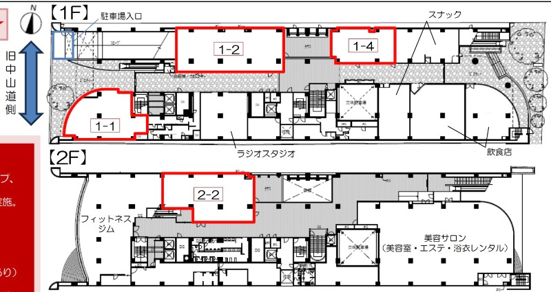
住所 埼玉県さいたま市浦和区高砂二丁目1-19 建物名/所在階 グローバルビュー浦和/1階 最寄駅 JR京浜東北線浦和駅
徒歩4分近隣駅1 宇都宮線浦和駅
徒歩4分近隣駅2 ー
費用/契約
-
造作価格 ー 賃料(坪単価) 1,159,125円(27,500円) 管理費/共益費(坪単価) ー(ー) 保証金/敷金 6ヶ月 / ー 償却 0% 礼金 1ヶ月 更新料/再契約料 1ヶ月 その他費用 ー 仲介手数料 1ヶ月 その他手数料 ー 契約期間 3年 契約種別 普通賃貸借
用途
-
物件の現況 ダイニングバー 可能用途 指定あり 坪数 42.15坪
- 備考
- フリーレント相談可
火災保険:加入必須
看板設置可能箇所:複数あり ※看板料は掲出箇所によって相談
























