物件ID:174899
情報公開日:2025年09月28日
情報更新日:2025年12月23日
立地
-
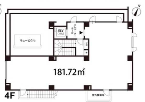
住所 埼玉県さいたま市浦和区元町二丁目18-13 建物名/所在階 浦和元町メディカルビル 4F/4階 最寄駅 JR京浜東北線北浦和駅
徒歩7分近隣駅1 ー 近隣駅2 ー
費用/契約
-
造作価格 ー 賃料(坪単価) 786,500円(14,307円) 管理費/共益費(坪単価) 91,300円(1,660円) 保証金/敷金 4,290,000 / ー 償却 0% 礼金 1,573,000 更新料/再契約料 ー その他費用 看板料(税込)11000円 仲介手数料 1ヶ月 その他手数料 ー 契約期間 3年 契約種別
用途
-
物件の現況 サービス(その他) 可能用途 指定あり 坪数 54.97坪
- 備考



















