物件ID:171470
情報公開日:2026年02月27日
情報更新日:2026年02月27日
立地
-
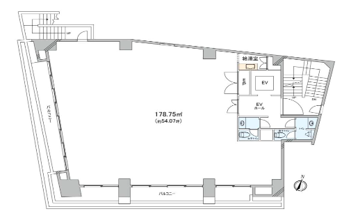
住所 埼玉県川口市栄町三丁目10-1 建物名/所在階 長堀ビル 6F 川口/6階 最寄駅 JR京浜東北線川口駅
徒歩4分近隣駅1 ー 近隣駅2 ー
費用/契約
-
造作価格 ー 賃料(坪単価) 810,000円(14,980円) 管理費/共益費(坪単価) 200,000円(3,698円) 保証金/敷金 0ヶ月 / 12ヶ月 償却 0% 礼金 0ヶ月 更新料/再契約料 ー その他費用 ー 仲介手数料 1ヶ月 その他手数料 ー 契約期間 3年 契約種別
用途
-
物件の現況 サービス(その他) 可能用途 指定あり 坪数 54.07坪
- 備考



















