物件ID:170836
情報公開日:2025年08月26日
情報更新日:2026年02月18日
立地
-
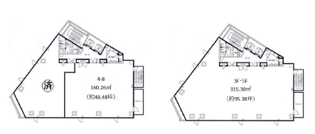
住所 神奈川県厚木市中町三丁目12-1 建物名/所在階 厚木国際ビル 3F/3階 最寄駅 小田急線厚木駅
徒歩2分近隣駅1 ー 近隣駅2 ー
費用/契約
-
造作価格 ー 賃料(坪単価) 734,426円(7,700円) 管理費/共益費(坪単価) 209,836円(2,200円) 保証金/敷金 6ヶ月 / ー 償却 0% 礼金 1ヶ月 更新料/再契約料 1ヶ月 その他費用 駐車場1台20000円税別 看板使用料35000円税別 仲介手数料 1ヶ月 その他手数料 ー 契約期間 2年 契約種別
用途
-
物件の現況 サービス(その他) 可能用途 指定あり 坪数 95.38坪
- 備考





















