物件ID:170589
情報公開日:2025年08月24日
情報更新日:2026年04月09日
立地
-
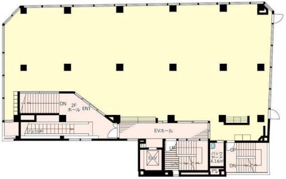
住所 神奈川県川崎市中原区木月一丁目22-7 建物名/所在階 2階 最寄駅 東急東横線元住吉駅
徒歩1分近隣駅1 ー 近隣駅2 ー
費用/契約
-
造作価格 ー 賃料(坪単価) 2,101,000円(22,034円) 管理費/共益費(坪単価) 110,000円(1,153円) 保証金/敷金 10ヶ月 / ー 償却 ご相談 礼金 1ヶ月 更新料/再契約料 ー その他費用 ー 仲介手数料 1ヶ月 その他手数料 ー 契約期間 3年 契約種別
用途
-
物件の現況 ー 可能用途 何業も可 坪数 95.35坪
- 備考



















