物件ID:169349
情報公開日:2025年08月09日
情報更新日:2026年01月17日
立地
-
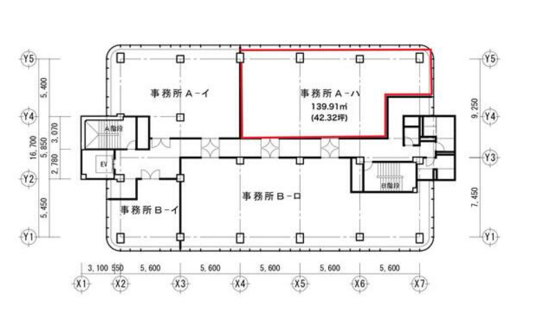
住所 神奈川県相模原市南区古淵二丁目18-3 建物名/所在階 山政第1ビル/4階 最寄駅 JR横浜線古淵駅
徒歩1分近隣駅1 ー 近隣駅2 ー
費用/契約
-
造作価格 ー 賃料(坪単価) 404,800円(9,564円) 管理費/共益費(坪単価) 95,700円(2,261円) 保証金/敷金 ー / 1,840,000 償却 ご相談 礼金 1ヶ月 更新料/再契約料 1ヶ月 その他費用 ー 仲介手数料 1ヶ月 その他手数料 ー 契約期間 3年 契約種別
用途
-
物件の現況 サービス(その他) 可能用途 指定あり 坪数 42.32坪
- 備考
- 諸条件、区画の分割についてはご相談可能でございます。
内装事務所仕様、塾、児童発達支援施設、事務所等ご利用しております。
内見も可能ですのでお気軽にお問い合わせください。



























