物件ID:168849
情報公開日:2026年02月03日
情報更新日:2026年03月05日
立地
-
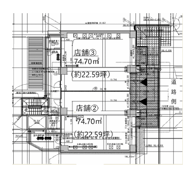
住所 千葉県松戸市新松戸二丁目11-1 建物名/所在階 マ・メゾン新松戸Ⅲ 2F③/2階 最寄駅 JR武蔵野線新松戸駅
徒歩3分近隣駅1 ー 近隣駅2 ー
費用/契約
-
造作価格 ー 賃料(坪単価) 451,800円(19,994円) 管理費/共益費(坪単価) ー(ー) 保証金/敷金 4ヶ月 / ー 償却 ご相談 礼金 1ヶ月 更新料/再契約料 ー その他費用 ー 仲介手数料 1ヶ月 その他手数料 ー 契約期間 3年 契約種別
用途
-
物件の現況 ー 可能用途 指定あり 坪数 22.60坪
- 備考



















