物件ID:167583
情報公開日:2025年07月25日
情報更新日:2026年01月20日
立地
-
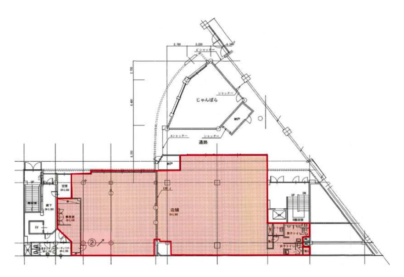
住所 神奈川県横浜市西区南幸一丁目5-39 建物名/所在階 太洋ビル 1F/1階 最寄駅 相鉄本線横浜駅
徒歩2分近隣駅1 JR東海道本線(東京~熱海)横浜駅
徒歩2分近隣駅2 ー
費用/契約
-
造作価格 ー 賃料(坪単価) 4,730,000円(39,417円) 管理費/共益費(坪単価) 132,000円(1,100円) 保証金/敷金 10ヶ月 / ー 償却 2ヶ月 礼金 2ヶ月 更新料/再契約料 ー その他費用 ー 仲介手数料 1ヶ月 その他手数料 ー 契約期間 5年 契約種別 普通賃貸借
用途
-
物件の現況 サービス(その他) 可能用途 指定あり 坪数 120.00坪
- 備考




















