物件ID:166682
情報公開日:2025年07月16日
情報更新日:2025年10月09日
立地
-
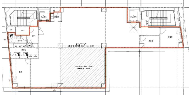
住所 埼玉県さいたま市大宮区宮町一丁目14 建物名/所在階 5階 最寄駅 JR京浜東北線大宮駅
徒歩3分近隣駅1 ー 近隣駅2 ー
費用/契約
-
造作価格 ー 賃料(坪単価) ご相談(0円) 管理費/共益費(坪単価) ご相談(ご相談) 保証金/敷金 ー / 12ヶ月 償却 ご相談 礼金 ご相談 更新料/再契約料 ー その他費用 ー 仲介手数料 1ヶ月 その他手数料 ー 契約期間 ー 契約種別 普通賃貸借
用途
-
物件の現況 サービス(その他) 可能用途 指定あり 坪数 74.07坪
- 備考
- 保証会社加入必須 保険加入必須





















