物件ID:166354
情報公開日:2025年07月14日
情報更新日:2026年03月05日
立地
-
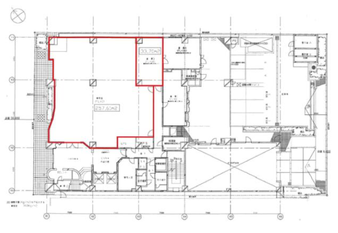
住所 神奈川県横浜市鶴見区鶴見中央四丁目33-5 建物名/所在階 TG鶴見ビル/1階 最寄駅 京急本線京急鶴見駅
徒歩4分近隣駅1 ー 近隣駅2 ー
費用/契約
-
造作価格 ー 賃料(坪単価) 1,028,500円(13,198円) 管理費/共益費(坪単価) 257,017円(3,298円) 保証金/敷金 12ヶ月 / ー 償却 ご相談 礼金 0ヶ月 更新料/再契約料 0ヶ月 その他費用 保証会社・火災保険加入要 時間外空調費別途有 仲介手数料 1ヶ月 その他手数料 ー 契約期間 2年 契約種別 普通賃貸借
用途
-
物件の現況 ー 可能用途 指定あり 坪数 77.93坪
- 備考
- 24時間利用可能 天井高3m 新耐震基準 有人警備
1F倉庫(33.7㎡)使用料相談可 駐車場:有、22000円/月
清掃・工事:指定業者有 手数料:1ヶ月分/税別 共用部にトイレあり























