物件ID:166071
情報公開日:2025年07月11日
情報更新日:2025年10月08日
立地
-
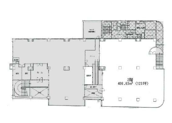
住所 神奈川県横浜市港北区綱島西二丁目5-13 建物名/所在階 梅島ニックハイム綱島第7 B号室/2階 最寄駅 東急東横線綱島駅
徒歩4分近隣駅1 ー 近隣駅2 ー
費用/契約
-
造作価格 ー 賃料(坪単価) 1,217,700円(9,899円) 管理費/共益費(坪単価) 57,100円(464円) 保証金/敷金 ー / 12ヶ月 償却 ご相談 礼金 1ヶ月 更新料/再契約料 ー その他費用 指定保証会社加入必須 火災保険加入要 管理費:61303円 仲介手数料 1ヶ月 その他手数料 ー 契約期間 3年 契約種別
用途
-
物件の現況 ー 可能用途 指定あり 坪数 123.01坪
- 備考
- 旧耐震建物
専用上りエスカレーターあり



















