物件ID:160087
情報公開日:2026年02月16日
情報更新日:2026年02月16日
立地
-
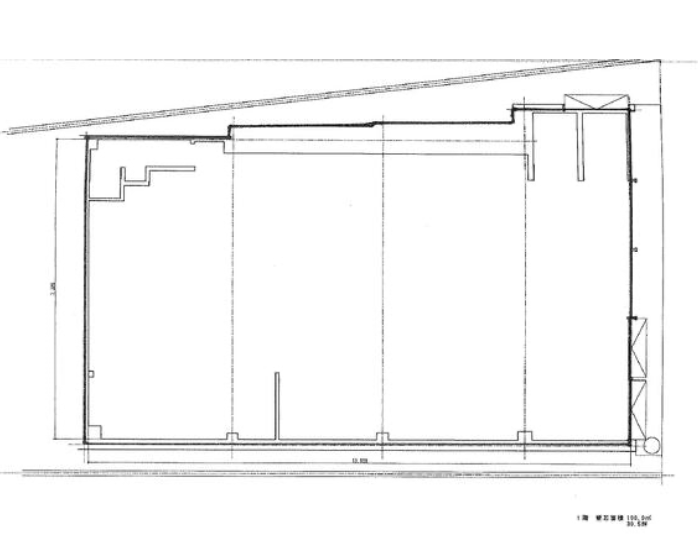
住所 神奈川県相模原市中央区矢部三丁目18-4 建物名/所在階 相模原市中央区矢部3丁目貸店舗/1階 最寄駅 JR横浜線矢部駅
徒歩1分近隣駅1 ー 近隣駅2 ー
費用/契約
-
造作価格 ー 賃料(坪単価) 440,000円(13,292円) 管理費/共益費(坪単価) ー(ー) 保証金/敷金 ー / 6ヶ月 償却 ご相談 礼金 2ヶ月 更新料/再契約料 ー その他費用 ー 仲介手数料 1ヶ月 その他手数料 ー 契約期間 3年 契約種別
用途
-
物件の現況 ー 可能用途 指定あり 坪数 33.10坪
- 備考



















