物件ID:151527
情報公開日:2025年03月11日
情報更新日:2026年03月18日
立地
-
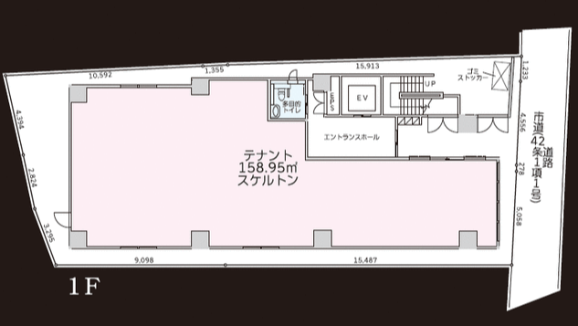
住所 埼玉県川口市栄町三丁目2-22 建物名/所在階 ミツタカビルⅡ/1階 最寄駅 JR京浜東北線川口駅
徒歩4分近隣駅1 ー 近隣駅2 ー
費用/契約
-
造作価格 ー 賃料(坪単価) 1,100,000円(22,877円) 管理費/共益費(坪単価) 55,000円(1,143円) 保証金/敷金 12ヶ月 / ー 償却 ご相談 礼金 1ヶ月 更新料/再契約料 1ヶ月 その他費用 保証会社利用可/加入必要な場合有 保険加入要 仲介手数料 1ヶ月 その他手数料 ー 契約期間 2年 契約種別
用途
-
物件の現況 ー 可能用途 指定あり 坪数 48.08坪
- 備考
- 警備システムあり 都市ガス 適格請求書発行可
重飲食、物販のチェーンにおすすめ
所在住所:川口市栄町3丁目2-22-2



















