物件ID:【HA】59115
情報公開日:2026年05月11日
立地
-
住所 北海道札幌市西区二十四軒一条4丁目2番23号 建物名/所在階 加森ビル8 /3階 最寄駅 二十四軒駅 近隣駅1 ー 近隣駅2 ー
費用/契約
-
造作価格 ー 賃料(坪単価) 249,150円(8,250円) 管理費/共益費(坪単価) 43,186円(1,430円) 保証金/敷金 1,359,000円 償却 ー 礼金 ー 更新料/再契約料 ー その他費用 ー 仲介手数料 ー その他手数料 ー 契約期間 ー 契約種別 ー
用途
-
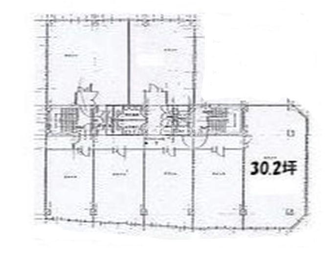
物件の現況 可能用途 ー 坪数 30.20坪
- 備考
- ー

























