物件ID:【HA】38477
情報公開日:2026年05月11日
立地
-
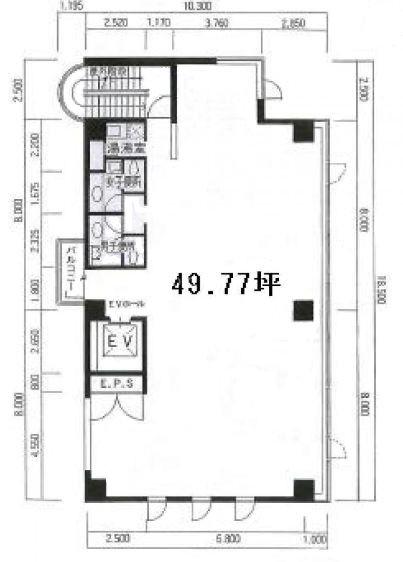
住所 北海道札幌市北区北二十三条西4丁目1番12号 建物名/所在階 鉄北ビル /3階 最寄駅 北24条駅 近隣駅1 ー 近隣駅2 ー
費用/契約
-
造作価格 ー 賃料(坪単価) 275,748円(6,600円) 管理費/共益費(坪単価) 45,958円(1,100円) 保証金/敷金 1,504,080円 償却 ー 礼金 ー 更新料/再契約料 ー その他費用 ー 仲介手数料 ー その他手数料 ー 契約期間 ー 契約種別 ー
用途
-
物件の現況 可能用途 ー 坪数 41.78坪
- 備考
- ー
























