物件ID:200831
情報公開日:2026年04月27日
情報更新日:2026年04月27日
立地
-
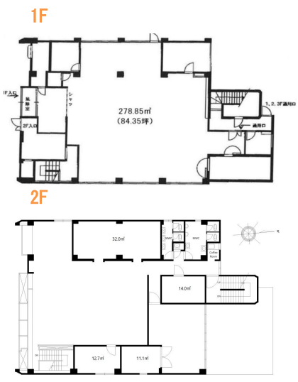
住所 千葉県木更津市中央一丁目3-2 建物名/所在階 1~2階 最寄駅 JR内房線木更津駅
徒歩1分近隣駅1 ー 近隣駅2 ー
費用/契約
-
造作価格 ー 賃料(坪単価) 1,320,000円(15,648円) 管理費/共益費(坪単価) ー(ー) 保証金/敷金 5ヶ月 / 0ヶ月 償却 ご相談 礼金 0ヶ月 更新料/再契約料 ー その他費用 ー 仲介手数料 1ヶ月 その他手数料 ー 契約期間 ー 契約種別 普通賃貸借
用途
-
物件の現況 サービス(その他) 可能用途 何業も可 坪数 84.35坪
- 備考



















