物件ID:192877
情報公開日:2026年02月25日
情報更新日:2026年02月25日
立地
-
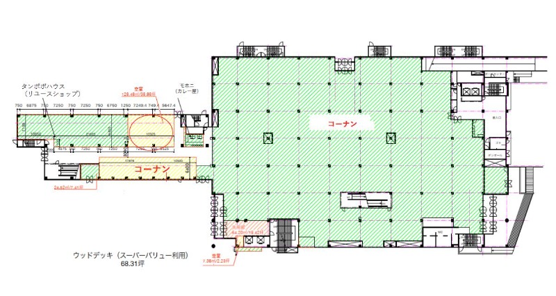
住所 千葉県松戸市五香八丁目44-6 建物名/所在階 プラッツ五香 1F/1階 最寄駅 新京成線元山駅
徒歩13分近隣駅1 ー 近隣駅2 ー
費用/契約
-
造作価格 ー 賃料(坪単価) 512,952円(13,198円) 管理費/共益費(坪単価) ー(ー) 保証金/敷金 ー / 6ヶ月 償却 0% 礼金 0ヶ月 更新料/再契約料 ー その他費用 基本空調代:月額600円/坪(税別) 仲介手数料 1ヶ月 その他手数料 ー 契約期間 5年 契約種別 普通賃貸借
用途
-
物件の現況 サービス(その他) 可能用途 指定あり 坪数 38.87坪
- 備考
- 【物件概要・設備】EV:乗用2基20人乗り、荷物用2基
エスカレーター:6基 空調:セントラル空調
駐車場:平置き177台、屋上119台 駐輪場:274台



















