物件ID:169251
情報公開日:2025年08月08日
情報更新日:2026年03月24日
立地
-
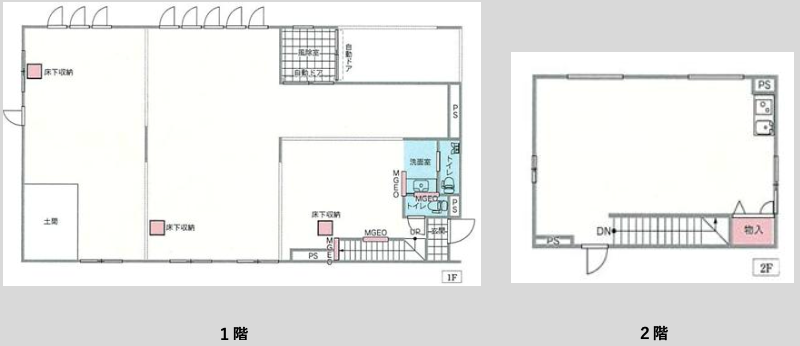
住所 埼玉県富士見市ふじみ野西一丁目21-2 建物名/所在階 澤田ビル/2階 最寄駅 東武東上線ふじみ野駅
徒歩2分近隣駅1 ー 近隣駅2 ー
費用/契約
-
造作価格 ー 賃料(坪単価) 280,500円(12,564円) 管理費/共益費(坪単価) 11,000円(492円) 保証金/敷金 10ヶ月 / 0ヶ月 償却 ご相談 礼金 0ヶ月 更新料/再契約料 ー その他費用 ー 仲介手数料 1ヶ月 その他手数料 ー 契約期間 3年 契約種別
用途
-
物件の現況 ー 可能用途 何業も可 坪数 22.32坪
- 備考



















