物件ID:167745
情報公開日:2025年07月27日
情報更新日:2026年01月14日
立地
-
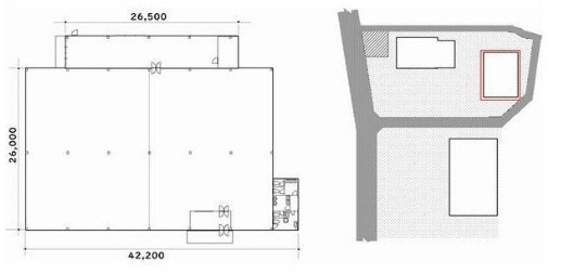
住所 千葉県山武郡九十九里町片貝370-1 建物名/所在階 1階 最寄駅 JR東金線東金駅
徒歩88分近隣駅1 ー 近隣駅2 ー
費用/契約
-
造作価格 ー 賃料(坪単価) 1,320,000円(3,878円) 管理費/共益費(坪単価) ー(ー) 保証金/敷金 6ヶ月 / ー 償却 ご相談 礼金 1ヶ月 更新料/再契約料 ー その他費用 ー 仲介手数料 1ヶ月 その他手数料 ー 契約期間 3年 契約種別
用途
-
物件の現況 物販 可能用途 何業も可 坪数 340.31坪
- 備考



















